リビングに書斎があるおしゃれな間取り・実例|オープン・間仕切りなどのレイアウトをご紹介

リビングの書斎は家族との距離感を大切にしながら勉強や仕事、趣味を楽しめる人気の間取りです。
そこで今回はリビングに書斎をつくったおしゃれな住まいの間取り図と実例をご紹介します。
オープンや半個室などのレイアウトの違いを解説し、リビング書斎のデメリットと注意点もお伝えしますのでぜひ最後までご覧ください。
コラムのポイント
● リビングの書斎はオープン・半個室・個室・小上がりなど様々なレイアウトを選択できます。
● 用途を明確にしたうえでご家族に合った書斎のスタイルを考え、LDKと統一感のあるデザインを取り入れることがポイントです。
● 間取りの自由度が高く、リビング書斎の施工実績も豊富な住宅会社への相談をおすすめします。
リビングに書斎コーナーをつくるメリット

▶施工事例:やわらかな光で彩られたカリフォルニアスタイルの家
リビングに書斎をつくるメリットをご紹介します。
- ・勉強中のお子様の様子を確認しやすい
- ・仕事中もご家族とコミュニケーションを取れる
- ・家族共有のスペースとして使える
- ・隙間時間でも趣味を楽しみやすい
- ・省スペースで書斎をつくれる
- ・冷暖房費の節約になる
リビングの書斎は家族とのつながりを感じながら自分の時間も確保できるバランスの良い空間と言えます。
ご家族全員が長く過ごすリビングに書斎があると自然と使う機会が増えるのもメリットです。
「リビング+書斎」のレイアウトは4パターン

▶施工事例:毎日の暮らしにアクティブを 庭にブランコのある家
リビング書斎は次の4パターンの間取りがあります。
- ・オープンスペース
- ・間仕切りした半個室
- ・壁や扉で囲んだ個室
- ・スキップフロアや小上がり
それぞれの特徴を確認しましょう。
①オープンスペース
リビングの一角にカウンターを設けて書斎にする間取りです。
仕切りがないためリビングに書斎があっても圧迫感が出にくく、荷物の一時置きなどの際にも活用できます。
また作業中でもリビングにいる家族とコミュニケーションが取りやすい点も特徴です。
②間仕切りした半個室
書斎スペースの一部を壁で緩やかに仕切った半個室タイプの間取りです。
リビングにいる家族と適度な距離感を保てるため、気配を感じながらも集中して作業できる環境がつくれます。
壁が目隠しにもなるため、資料などがデスクに出ていても気になりにくい点もメリットです。
③壁や扉で囲んだ個室
個室の書斎をリビングに隣接させる間取りです。
扉を閉めれば生活音を遮れるため集中しやすく、開ければすぐに家族の様子を確認できます。
在宅ワークでWeb会議が多い方などにもおすすめです。
④スキップフロア・小上がり
リビングに隣接するスキップフロアや小上がりを書斎にする方法もあります。
床座でゆったり過ごしたい方には小上がりの畳スペースが最適です。
階段の途中のスペースを活かしたスキップフロアはお子様にも人気があり、家族で共有できる書斎としても活用できます。
▶おすすめコラム:
【書斎のある注文住宅】タイプ別特徴と事例で見る失敗しないための間取りポイント
リビングに書斎があるおしゃれな間取り・実例
リビングに書斎があるおしゃれな間取りと実例写真をご紹介します。
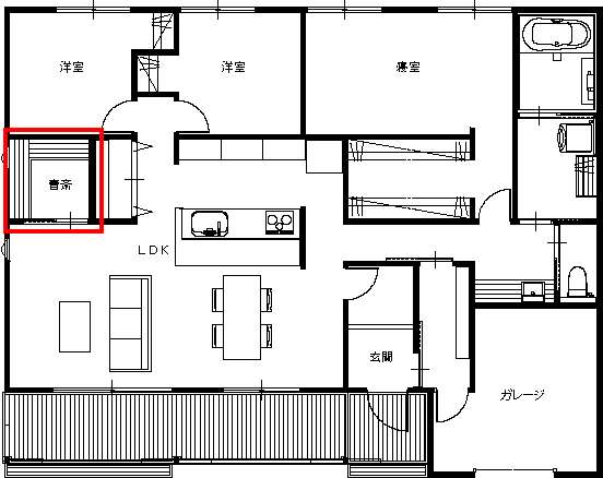
①リビングに隣接する個室の書斎

リビング横に個室の書斎をつくった事例です。
引き戸で仕切られた2畳の書斎で集中して作業できます。

L字型にカウンターを設け、空間を有効活用しています。
カウンター・棚・天井の木目の色を合わせ、統一感のあるアメリカンテイストの書斎に仕上げました。
▶施工事例:大好きなインテリアに囲まれた アメリカンスタイルの平屋
②リビングのテレビ裏にある縦長の書斎

テレビ裏のスペースを有効活用して縦長の書斎を採用した事例です。
扉を2つ設けたため、ライフスタイルの変化に合わせて仕切ることもできます。

カウンターや棚は造作せずに好みの家具を置けるようにしました。
用途が変わった際にも対応できる可変性の高い書斎です。
▶施工事例:セミオーダー×アメリカン ワークスペースのある暮らし
③リビングと一体感のある寝室兼書斎

リビングと玄関ホールから出入りできる書斎をつくった事例です。
広めのスペースを確保し、寝室と兼用の書斎にしました。

扉を全開にするとリビングと書斎が一体となり、開放感がプラスされます。
またLDKの空調だけで書斎まで快適に保てるため、省エネにもつながる間取りです。
▶施工事例:ミニマム&アクティブ 平屋で叶えるセカンドライフ
④リビング横の洋室を家族の共有スペースに

リビング横にある洋室の一角に書斎をつくった間取りです。
3枚の扉を全開にするとリビングと一体の空間として活用できます。

壁と収納の間にカウンターを設け、書斎として使えるようにしました。
お子様の勉強や奥様のお化粧、ご主人のリモートワークなど家族全員がそれぞれの用途で使える便利なスペースです。
▶施工事例:暮らしを愉しむ吹抜けリビングの家
⑤リビングに隣接した半個室の書斎

リビングに隣接した広々とした書斎がある住まいです。
壁で仕切られていますが扉を設けていないため、家族の存在を感じながら作業を進められます。

座った状態でも室内窓からリビングの様子を確認できます。
大容量の収納を造作し、趣味や仕事で使う物を整理整頓できるようにしました。
▶施工事例:セミオーダー×西海岸スタイル リビングに書斎のある家
⑥リビング横のオープンな書斎

リビング横にオープンタイプの書斎を採用した事例です。
LDKにいながらお子様が勉強する様子を見守ることができ、すぐに声をかけやすいレイアウトです。

デニム調のアクセントクロスを採用し、アメリカンテイストの内装に仕上げました。
カウンター専用のダウンライトを2灯つけ、作業するのに十分な明るさも確保しています。
▶施工事例:カリフォルニアの風を感じる アメリカンスタイルの平屋
⑦オープンスペースでも集中できる書斎

リビングとダイニングの一角に書斎をつくった間取りです。
ソファに座っている家族の目線が気になりにくい配置のため、オープンな書斎でも集中できます。

カウンターの横や正面が壁になっている点も落ち着ける空間にするためのポイントです。
フローリングとカウンターの色を合わせ空間に馴染むデザインに仕上げました。
▶施工事例:サーフ×リゾート 心身を解きほぐすセカンドハウス
⑧リビングが見下ろせるロフトの書斎

リビング階段を設け、ロフトの書斎をつくった事例です。
高さの違いによってゆるやかに空間が仕切られるため集中できます。

ロフトを見下ろすとリビング・ダイニングや和室の様子を確認できます。
書斎やお子様の遊び場、くつろぎスペースなど多用途で活用できる空間です。
▶施工事例:スキップフロアに書斎のある ナチュラルリビングの平屋
▶︎お電話でのお問い合わせ 0120-35-3436
▶︎ショールームや各種イベントのご予約・お問い合わせはこちら
リビングにある書斎のデメリットと注意点

リビングに書斎をつくるデメリットと注意点をご紹介します。
①家族の生活音や会話が気になりやすい
リビングの書斎は家族の生活音や会話が気になりやすい点がデメリットです。
仕事中や集中したい作業の際には不便さを感じるかもしれません。
扉をつけて音を遮れるようにするなどの対策を検討しましょう。
▶おすすめコラム:
テレワークのデメリットを解決できる自宅の工夫|在宅勤務の生産性をアップできる家づくりのポイント
②書斎の周りが動線になっていると集中しにくい
間取りによってはリビングと他の空間をつなぐ動線上に書斎がつくられるケースもあります。
しかし作業中に家族が何度も通ると気になってしまい、集中できない可能性があるため注意が必要です。
家族の行き来が少ないリビングの角に書斎を配置するなどの工夫で快適性を高めることができます。
③Web会議の映り込みに注意が必要
リビングの書斎ではWeb会議中にご家族が映り込まないよう注意が必要です。
書斎の背面にLDKが配置されている場合、プライバシーに欠けるため背景を設定するなどの対策を取り入れましょう。
Web会議が多い場合はあらかじめ書斎のレイアウトに注意し、個室タイプを選ぶと安心です。
④リビングの照明だけでは手元が暗くなりやすい
リビングの照明だけでは書斎が暗くなる可能性があります。
書斎は細かな作業をするスペースのため、ある程度の明るさを確保できた方が手元が見やすく、長時間の作業でも目が疲れにくいです。
カウンターやデスク周りにダウンライトなどを施工することで手元の明るさを確保できます。

書斎の電球は自然光に近い「昼白色」がおすすめです。
ただしリビングをオレンジに近い「電球色」にする場合、色の違いによる違和感が生じることがあります。
中間色である「温白色」を選んで統一感を保ったり、調光タイプの照明にするなどの方法で対策しましょう。
⑤収納がないと物が散らかりやすい
書斎に収納がない場合、置ききれない資料や趣味用品がリビングに散乱しやすい点も注意が必要です。
またリビングに収納がない場合はカウンターに物が一時置きされやすく、本来の書斎としての用途で使えなくなるケースもあります。
カウンターの上下にあるデッドスペースを活かしたり、リビングの一角に収納を設けるなどして整理整頓しやすい空間をつくることが大切です。
⑥仕事の書類などがお子様の手に届きやすい
リビングの書斎は仕事の書類などがお子様の手に届きやすい点がデメリットです。
大切な書類を管理できる環境を整え、家族全員が安心して使えるスペースにしましょう。
個室の書斎にしたり鍵付きの収納を設けたりする方法が効果的です。
⑦オープンスペースはリビングとの調和がポイント
オープンな書斎をつくる場合はリビングとの調和を図ることがポイントです。
書斎にアクセントクロスを採用する事例は多いですが、選ぶデザインによってはLDKとの間に違和感が生じる可能性があります。
LDKに合うクロスや照明デザイン、カウンターの色などを選び、統一感のある空間に仕上げましょう。
⑧デスクを置く場合は事前にサイズを検討する
リビングの一角に書斎をつくる場合、デスクやチェアのバランスが悪いと圧迫感が出る可能性があります。
また壁に囲まれた個室や半個室の書斎はデスクのサイズに合わせた寸法調整が必要です。
造作ではなくデスクを置く予定の方は事前にサイズを確認し、設計士に伝えておきましょう。
▶︎お電話でのお問い合わせ 0120-35-3436
まとめ
書斎をリビングに配置することで家族とのつながりを感じながらも集中できる空間につくることが重要です。
書斎のタイプやレイアウト、LDKとのデザインの統一性を考え、おしゃれで使いやすい空間に仕上げましょう。
お客様のライフスタイルを考慮したうえで最適な書斎のスタイルを提案してくれる実績豊富な住宅会社への相談をおすすめします。
▶おすすめコラム:
趣味部屋のレイアウトを実例で解説|広さや用途によって異なる配置のポイントも
私たちクレアカーサ(株式会社日立プロパティアンドサービス)は千葉県茂原市にある建築会社です。
平屋建て・2階建てとレパートリー豊富な注文住宅や規格住宅の設計施工実績が豊富で「高断熱+高性能設備+太陽光発電」のZEH(ゼロエネルギー住宅)の普及にも努めております。
補助金を活用したこだわりの住まいもご提案可能ですのでお気軽にお問い合わせください。









