ファミリークローゼットの間取り図・実例7選|広さ・収納・動線のポイントと失敗を防ぐコツ

ご家族の洋服をまとめて収納できる「ファミリークローゼット」は家事の効率を高め、整った暮らしを実現したい方にぴったりです。
そこで今回はファミリークローゼットを採用した住まいの実例と間取り図をご紹介します。
ファミリークローゼットの広さ・収納・動線のポイントや失敗を防ぐコツもお伝えしますのでぜひ家づくりにお役立てください。
コラムのポイント
● ファミリークローゼットがある間取りは家族の洋服をまとめて片付けられるため、家事の効率を高めたい方におすすめです。
● 収納する服の量や種類を考え、ご家族に合う広さや収納がついたファミリークローゼットをつくりましょう。
● ライフスタイルの変化にも対応できるファミリークローゼットを提案してくれる施工実績が豊富な住宅会社への相談をおすすめします。
ファミリークローゼットとは

▶施工事例:片流れの美しいシルエット 土間のある平屋の家
メリット
ファミリークローゼットのメリットをご紹介します。
- ・各居室へ洋服を片付ける手間がなくなる
- ・服の管理や衣替えがしやすい
- ・物干しスペースと隣接させやすい
- ・各居室の広さを確保しやすい
- ・子どもと一緒に着替えを済ませられる
ファミリークローゼットは家族の洗濯物をまとめて片付けることができ、衣替えや整理整頓もスムーズに進められます。
また脱衣所やランドリールームと隣接させることで「干す・しまう」の効率をさらに高められます。
お子様と一緒に洋服を選んだりご自身の着替えも同時に済ませたりできるため、子育て世代にもぴったりの間取りです。
デメリット
ファミリークローゼットのデメリットをご紹介します。
- ・まとまったスペースが必要になる
- ・動線が悪いと使いにくい
- ・時間帯によっては混雑する
- ・プライバシーを確保しにくい
ファミリークローゼットはまとまったスペースが必要になるため、階ごとの収納量に偏りが生まれ、他の空間を圧迫してしまう場合があります。
動線が悪いと不便に感じたり狭すぎると朝の準備の際に混雑したりするケースもあるため注意が必要です。
またお子様が成長に合わせて「自分のクローゼットがほしい」と感じるようになり、将来的に収納を分ける必要が出てくることもあります。
▶︎お電話でのお問い合わせ 0120-35-3436
ファミリークローゼットの広さ・収納量のポイント

ファミリークローゼットの広さや収納量に関するポイントを解説します。
収納する物を明確にして広さを決める
ファミリークローゼットはご家族の人数や洋服の量に合わせて広さを考えることが大切です。
収納する物を明確にするために次の内容を検討しましょう。
- ・現状のクローゼットはどのくらいの広さか
- ・パジャマや下着は脱衣所にしまうのか
- ・季節物は別部屋で保管して衣替えするのか
- ・よく着るアウターは玄関に収納できるか
- ・バッグや帽子などの小物も一緒に収納するのか
これらの内容を設計士に明確に伝えることで適切な収納量を検討してもらえます。
また現状だけでなく将来的な家族構成やライフスタイルの変化も考慮して計画することが大切です。
▶おすすめコラム:
ファミリークローゼットの最適な広さは?間取りアイデアとおすすめの施工事例
クローゼットの用途を考える
ファミリークローゼットの使い方について考えることも大切です。
- ・クローゼットの中で着替えるのか
- ・洗濯物を畳むスペースが必要か
クローゼットの中で着替える場合、広めの通路幅や姿見の設置スペースを確保する必要があります。
またクローゼット内で洗濯物を畳んで片付ける場合、カウンタースペースがあると便利です。
パイプ・引き出しなど使いやすい収納を選ぶ
ファミリークローゼットは広さだけでなく、収納のバリエーションによっても収納量が異なります。
- ・パイプ:長いアウターやワンピースもすっきり収納できる
- ・引き出し:畳んでしまうため収納量を確保しやすい
- ・可動棚:ものに合わせて高さを調整できる
- ・中段(奥行きのある固定棚):布団などの大物もしまえる
パイプ収納をメインにしたファミリークローゼットは洗濯物がシワになりにくく、アイロンや畳む手間が省けるというメリットもあります。
バッグや帽子なども置ける可動棚は高さが変えられるため、ライフスタイルの変化にも対応しやすく使い勝手が良いです。
持っている洋服の種類によって最適な収納方法は変わるため、マイホーム計画の際にはご家族の洋服の種類や量を改めて見直してみても良いでしょう。

どれか1つの収納方法を採用するのではなく空間に合わせて組み合わせることもできます。
デッドスペースにはカゴやキャビネットを置いて空間を有効活用しましょう。
動線と収納量のどちらを優先させるか
ファミリークローゼットは動線を良くすると使い勝手が高まります。
クローゼットは人が入るスペースがある「ウォークインタイプ」が一般的ですが、通り抜けられる「ウォークスルータイプ」も人気です。
ウォークスルータイプのファミリークローゼットは複数の空間と動線を確保できるため家事の効率が高まり、朝の混雑時にも対応しやすくなります。
ただし通路を確保することで収納スペースが少なくなるケースもあるため、動線の便利さと収納量のバランスを考慮して計画することが大切です。
▶おすすめコラム:
動線が良い家の間取りアイデア12選|家事・洗濯・帰宅時などの作業を効率化する工夫
ファミリークローゼットにおすすめな動線

▶施工事例:セミオーダー×ZEH シンプルスタイリッシュな家
ファミリークローゼットの使い勝手を良くする動線のアイデアをご紹介します。
①1階完結型
洗濯に関する次の空間をすべて1階に配置する間取りです。
- ・洗面脱衣所
- ・ランドリールーム
- ・ファミリークローゼット
これらを同じ階に配置することで洗濯物を干したり片付けたりする際に階段を使う手間を省くことができます。
寝室も1階に配置できれば将来はワンフロアの暮らしも実現可能です。
▶おすすめコラム:
【1.5階建ての家】平屋・2階建てとの違いや実例で見る間取りのポイント
②洗面脱衣所・ランドリールームとの動線
洗面脱衣所やランドリールームとファミリークローゼットの動線を確保した間取りです。
「洗う・干す・しまう」の家事をするための移動距離が最小限になり、時短や身体への負担が軽減できます。
洗濯の回数が多いご家庭や家事を効率化したい方におすすめです。
▶おすすめコラム:
水回りの間取りは動線の工夫が大切|家事をラクにするアイデアを間取り図と実例で解説
③外の物干し場との動線
外干しする場合は屋外とファミリークローゼットの動線も考慮することがポイントです。
クローゼットの近くに掃き出し窓や勝手口を設けておくと外干し場への出入りがしやすく、洗濯物を取り込む動作もスムーズになります。
物干し場からファミリークローゼットが近い場合、洗濯物を取り込んでソファなどに一時置きすることがなくなるため、リビングをすっきりと整った状態に保ちたい方にもおすすめです。
④玄関との動線
玄関とファミリークローゼットを近づけるとお出かけの準備や片付けがスムーズになります。
- ・外出時:着替えてそのまま出かけられる
- ・帰宅時:すぐにアウターを脱いでバッグを置ける
ファミリークローゼットを玄関付近に配置することでリビングにアウターやバッグなどを置きっぱなしにするのを防ぐことができます。
花粉や雑菌を持ち込みたくない場合は玄関にアウター専用のコンパクトなファミリークローゼットをつくる間取りもおすすめです。
▶おすすめコラム:
シューズクローゼットの間取りアイデア実例|収納量・使い勝手・おしゃれさを実現するための方法
⑤リビングとの動線
リビングとファミリークローゼットを近づけることで家族全員が使いやすい空間になります。
LDKを中心に生活するご家庭がほとんどのため、リビングとの動線を確保すると日常的なルーティンがスムーズに進み、お子様の着替えの様子も確認しやすいです。
特にワンフロアの面積が広くなる平屋ではLDKにファミリークローゼットや水回りを隣接させることで無駄のないスムーズな動線を確保できます。
⑥寝室からの動線
起床してすぐ着替える場合は寝室からの動線も確保しておくとスムーズです。
また寝る前に翌日の洋服を選んでから寝るといったルーティンがある方にもおすすめします。
ご家族全員が使いやすいように寝室以外の動線もある「ウォークスルータイプ」のファミリークローゼットを検討しましょう。
私たちクレアカーサ(株式会社日立プロパティアンドサービス)は千葉県茂原市にて、お客様の個性やライフスタイルに合わせて一邸一邸大切につくる家づくりをしております。
お客様の暮らしをお伺いしたうえで最適なファミリークローゼットの動線を提案しますのでお気軽にご相談ください。
▶︎お電話でのお問い合わせ 0120-35-3436
▶︎ショールームや各種イベントのご予約・お問い合わせはこちら
ファミリークローゼットの間取り図・実例7選
ファミリークローゼットを採用した住まいの間取り図と実例をご紹介します。
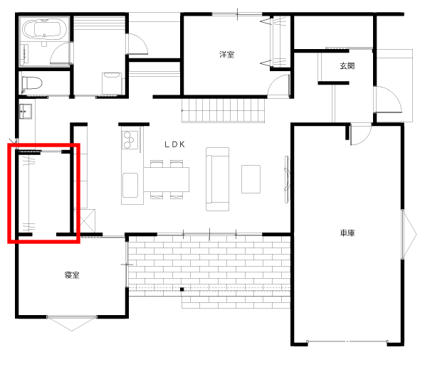
①【平屋・約30坪】寝室・玄関をつなぐファミリークローゼット

寝室と玄関をつなぐ動線上にファミリークローゼットを配置した間取りです。
さらに水回りとも近いため、洗濯や朝の準備、帰宅時など様々なシーンでスムーズに使うことができます。

パイプと枕棚を設置したシンプルなウォークスルータイプのクローゼットです。
下部はキャビネットやキャリーケースを置くなどご家族のライフスタイルに合わせてカスタマイズできます。
▶施工事例:光あふれるリビング シンプルスタイルの平屋
②【平屋・約31坪】シューズクローゼットとつながる動線

洗面所と玄関の間にファミリークローゼットを配置した事例です。
洗面台で身だしなみを整え、着替えたらそのまま外出できます。
また帰宅時はファミリークローゼットでアウターを脱ぎ、手を洗ってからLDKに入ることができるため効率的です。

片側はパイプ、もう一方は可動棚と引き出し収納を採用しました。
しまう物に合わせて収納の使い分けができる実用性の高いファミリークローゼットです。
▶施工事例:塗り壁×ガルバリウム クールスタイルの平屋
③【平屋・約33坪】寝室と洗面をつなぐファミリークローゼット

寝室と洗面所の間にファミリークローゼットを設けた間取りです。
ファミリークローゼットの近くにある脱衣所からは外の物干し場へ出られるため、洗濯物を片付ける際の負担も軽減できます。

パイプのみを施工し、スペースに合わせてキャビネットを置きました。
他の空間と同じくグレーのクロスを施工して統一感を持たせ、黒のパイプハンガーを採用してかっこいい雰囲気のファミリークローゼットに仕上げています。
▶施工事例:ドライガーデンが彩る 海辺のサーファーズハウス
④【平屋・約35坪】白を基調としたファミリークローゼット

寝室と洗面脱衣所の間にファミリークローゼットを設けました。
サーフィンから帰宅してそのままお風呂に入り、着替えて寝室で一休みできるこだわりの動線です。

壁に鏡を取り付け、クローゼットの中でコーディネートをチェックしたり着替えたりできるようにしました。
床・壁・天井を白で統一し、洋服が見やすくて明るい印象の空間に仕上げています。
▶施工事例:太陽が似合う リゾートスタイルの家
⑤【2階建て・約29坪】洗濯が1階完結型の間取り

洗濯は1階だけで完結できる2階建ての住まいです。
洗濯機で洗濯・乾燥までを終わらせ、すぐ隣のファミリークローゼットへ洋服を片付けられます。

独立したファミリークローゼットは海外ドラマをお手本にして赤と紫のアクセントクロスを採用しました。
下部にはオープンラックを設置し、ショップのように洋服を見せながら収納できるスタイルにしています。
▶施工事例:ダウンリビングに集う モダンスタイルの家
⑥【2階建て・約31坪】2階にある大容量ファミリークローゼット

2階の1部屋をファミリークローゼットにした事例です。
各部屋の出入り口と近いため、朝起きて洋服を選んでから1階に下りるまでの動線がスムーズです。

▶施工事例:白と黒のコントラストが美しい 吹き抜けのある家
ほとんどの洋服をパイプにかけて収納できるようにしました。
一部のパイプを2段にしたため、トップスやバッグをすっきりと整理整頓できます。
⑦【2階建て・約39坪】空間ごとにミニクローゼットがある間取り

ランドリールームと玄関の一部にコンパクトなファミリークローゼットを設けた事例です。
2階の各居室にもクローゼットはありますが、使用頻度の高い洋服は1階に収納できます。

こちらはランドリールームにあるクローゼットです。
毎日着る仕事着や学校へ着て行く服を収納できます。

シューズクローゼットにもパイプがあるため、アウターを脱いでから室内へ入ることができます。
下にはランドセルを収納するラックを置き、リビングをきれいに保つための工夫を取り入れました。
▶施工事例:暮らしを愉しむ吹抜けリビングの家
▶︎お電話でのお問い合わせ 0120-35-3436
▶︎ショールームや各種イベントのご予約・お問い合わせはこちら
ファミリークローゼットで失敗しないためのコツ

▶施工事例:家族の絆育む シンプルスタイルの白い家
ファミリークローゼットを採用して失敗しないためのコツをご紹介します。
①ご家族にとっての必要性を考える
ご家族にとってファミリークローゼットは必要なのか考えることが大切です。
クローゼットよりも他の空間の優先順位が高い場合は各居室に収納を分散させた方が理想の間取りを実現しやすいかもしれません。
またお子様の年齢が大きいご家庭では個別のクローゼットを希望されるケースもあるため、ご家族で話し合って収納の方法を検討しましょう。
②各居室のクローゼットも検討する
ファミリークローゼットを採用する場合でも各居室にはクローゼットがあると便利です。
季節物の保管やファミリークローゼットの収納が足りなくなった際にも使えます。
将来的にファミリークローゼットを他の用途で使うことになった場合でも各居室にクローゼットがあれば収納に困りません。
③生活ルーティンに合う配置を選ぶ
ファミリークローゼットは暮らしに合った配置を選ぶことが大切です。
家事の効率を高めたい場合は洗面脱衣所やランドリールームと近づけた間取りがおすすめですが、ライフスタイルによって便利に感じる動線は異なります。
クローゼットを使う前後の動作をイメージし、どの空間との動線を確保するべきか検討しましょう。
④湿気・ニオイ対策も忘れずに
間取りによってはファミリークローゼットの快適性にも配慮しましょう。
浴室やランドリールームの近くの場合は湿気対策、玄関やシューズクローゼットと隣接させる場合はニオイ移りを防ぐための工夫が必要です。
どちらも個別の換気扇をつけたりドアを設けて仕切ったりするなどの方法で対策できます。
⑤ライフスタイルの変化も想定する
ファミリークローゼットを採用する場合、ライフスタイルの変化による用途変更を想定することもポイントです。
例えばお子様が巣立って洋服が少なくなったらファミリークローゼットの一部を書斎や趣味部屋として活用するなどの方法があります。
引き出しなどをつくり込みすぎずシンプルな収納に仕上げ、コンセントを設置しておくなどの工夫によって可変性を高めることが可能です。
まとめ
ファミリークローゼットは家事の効率を高めたい方や朝の準備をスムーズに進めたい方におすすめの間取りです。
お子様の成長なども踏まえてファミリークローゼットの計画を立て、長い間活用できる空間に仕上げましょう。
洋服の量やライフスタイルなどをヒアリングした上で間取りを提案してくれる実績豊富な住宅会社への相談をおすすめします。
私たちクレアカーサ(株式会社日立プロパティアンドサービス)は千葉県茂原市にある建築会社です。
平屋建て・2階建てとレパートリー豊富な注文住宅や規格住宅の設計施工実績が豊富で「高断熱+高性能設備+太陽光発電」のZEH(ゼロエネルギー住宅)の普及にも努めております。
補助金を活用したこだわりの住まいもご提案可能ですのでお気軽にお問い合わせください。








