【北向き玄関の間取り・外観】30坪・35坪の注文住宅実例|メリット・デメリットと対策も解説

北向き玄関は暗いイメージを持たれがちですが、実は南面に居室を多く配置できるため、明るく開放的な間取りを実現しやすいのが特徴です。
そこで今回は北向き玄関を採用した20~30坪台の間取りや外観実例をご紹介します。
北向き玄関のメリット・デメリット、風水との関係などについても解説しますのでぜひ最後までご覧ください。
コラムのポイント
● 北向き玄関は南面に居室を配置しやすく、玄関の室温が上がりにくいなどのメリットがある反面、暗くて冬場は底冷えしやすい点がデメリットです。
● 断熱性の向上や内装の工夫によって北向きの玄関のデメリットを対策できます。
● 北向きの玄関のメリットを活かした暮らしやすい間取りを提案してくれる設計力のある住宅会社へ相談しましょう。
北向きの玄関とは

▶施工事例:タイルデッキのある シンプルテイストの平屋
北向きの玄関とは玄関ドアの入り口が北側を向いていることを指します。
北道路の敷地の場合、駐車場や道路からの動線を良くするために北向きの玄関が採用されることが多いです。
メリット
北向きの玄関には次のようなメリットがあります。
- ・南面全体を居室にできる
- ・夏でも玄関の温度が上がりにくい
- ・北側からの柔らかな光を取り入れられる
北側に玄関や水回りを配置すれば、南側はLDKや和室などの居住スペースを配置することができます。
また北面は直射日光が当たらないため夏場でも快適性を高めやすく、朝・日中・夕方に関わらず柔らかな光を取り込める点もメリットです。
デメリット
北向きの玄関を採用するデメリットをご紹介します。
- ・間取りによっては暗くなる
- ・冬場は玄関が寒くなりやすい
- ・玄関周りの雨や雪が残りやすい
北面に小さな窓しかない場合、玄関が暗く感じるケースもあります。
風通しが悪い場合は湿気が溜まりやすくなり、ニオイやカビが発生する原因になる可能性もあるため注意しなければなりません。
また玄関に直射日光が当たらないため、室内は温度が上がりにくく外回りは水はけが悪くなりやすいです。
▶おすすめコラム:
日当たりの良い家の方角は?東西南北のメリット・デメリットと明るい部屋にするポイント
▶︎お電話でのお問い合わせ 0120-35-3436
▶︎ショールームや各種イベントのご予約・お問い合わせはこちら
北向き玄関を採用した注文住宅の間取り・外観実例(30坪・35坪前後)
北向き玄関を採用した注文住宅の間取りや外観の実例をご紹介します。
【約26坪・平屋】猫ちゃんと快適に暮らす家

北道路に面したコンパクトな敷地に平屋を建築した事例です。
黒のガルバリウム鋼板にスタイリッシュな片流れ屋根を組み合わせたシンプルモダンな外観です。

南面にはリビングからつながるタイルデッキと芝庭を採用しました。
高さのあるフェンスを設けることで猫ちゃんと安心してテラスに出られ、外からの視線も気になりません。

北面に玄関と洋室、水回りをまとめ、南面には日当たりを重視したいLDKと寝室を配置しました。
ダイニングや寝室には縦すべり窓を2つ以上配置するようにして風通しの良さも意識しました。
▶施工事例:猫のいる暮らし タイルデッキのある平屋
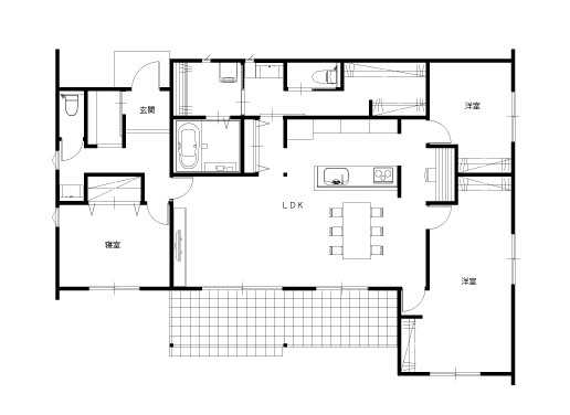
【約29坪・二階建て】生活・家事動線の良いダウンリビングの家

黒の外壁の建物と大型カーポートを組み合わせた存在感のある外観デザインです。
北面の窓を最小限にすることでプライバシー性を高めました。

北向き玄関ですが東側に大きな窓を付けたため、家族が出かける朝から午前中は明るい光が入ります。
玄関ホールの右側は洗面台、正面はファミリークローゼットにつながっているため、帰宅後の手洗いや着替えもスムーズです。


北側に水回りやクローゼットをまとめ、洗濯や水回りの掃除が効率的にできるような動線を取り入れています。
日当たりを確保しにくい縦長の敷地ですが、北向きの玄関を採用することでリビング・ダイニングを南側に配置して大きな窓をつけることができました。
▶施工事例:ダウンリビングに集う モダンスタイルの家
【約30坪・平屋】家族が明るい空間で過ごせる間取り

段違いの屋根がおしゃれなシンプルモダンな平屋です。
グレーや淡いブラウンなど淡い色味を外壁に選ぶことでモダンテイストでも柔らかさを感じる外観デザインに仕上げました。

南に面するLDKには大きな窓を3枚並べ、たっぷりと日差しを取り込めるようにしました。
白をベースとした内装に勾配天井を組み合わせることで開放的で明るい空間に仕上げています。
北に面するトイレや洗面所といったプライバシーが気になる空間には横長の小さな窓を設けているため、外からの視線は気になりません。
LDKの他に日中に使う機会が多い子ども部屋も南面に配置して日当たりを確保しました。
▶施工事例:光あふれるリビング シンプルスタイルの平屋
【約34坪・平屋】生活感のないおしゃれな外観デザイン

白と黒のモノトーンの外壁を組み合わせたシンプルモダンの外観です。
オレンジ色の照明で建物を照らすことで非日常感のある幻想的な雰囲気を演出できます。

建物の南面は大きな窓とタイルデッキをつくり、開放感のある空間に仕上げました。
窓はLDKにつながっているため、天気が良い日は窓を開けてアウトドアリビングを満喫できます。

北面に配置した洋室は東側に窓を設け、外観のシンプルさとプライバシー性を確保しています。
一方で南面の洋室は南面に大きな引違い窓を設けるなど部屋の方位に合った窓選びにもこだわっています。
▶施工事例:タイルデッキのある シンプルテイストの平屋
【約36坪・二階建て】重厚感のある北向きのガレージハウス

大きな車が停められる広々としたビルトインガレージがある住まいです。
玄関は黒い壁の裏に位置しているため道路からは見えず、ドアを開けても家の中を見られる心配がありません。

ガレージのすぐ南側にはダウンリビングを設けました。
北側の玄関とガレージそれぞれから室内に入ることができて便利です。


南側には広々とした一直線LDKを設け、リビングの上部には大きな吹き抜けを設けています。
玄関を北向きかつ家の中心に設けることで水まわりや階段への移動がスムーズになり、快適な生活動線が実現しました。
▶施工事例:ダウンリビングのあるガレージハウス
私たちクレアカーサ(株式会社日立プロパティアンドサービス)は千葉県茂原市にて、お客様の個性やライフスタイルに合わせて一邸一邸大切につくる家づくりをしております。
北向きの玄関の施工事例も豊富にありますのでぜひご覧ください。

▶︎お電話でのお問い合わせ 0120-35-3436
北向き玄関の間取りを成功に導く5つの対策

▶施工事例:光あふれるリビング シンプルスタイルの平屋
暮らしやすい北向き玄関の間取りを採用するための対策をご紹介します。
①窓・照明・内装の工夫で明るい印象にする
北向きの玄関は暗い印象を与えてしまうケースも少なくありません。
窓や照明、内装の工夫によって明るい空間づくりを意識しましょう。
- ・窓:高窓や大きめの窓を取り入れる
- ・照明:温かみのあるオレンジ系の「電球色」にする
- ・内装:光を反射する白系や暖かみのある色柄を取り入れる
大きな窓は明るい玄関をつくることができますが、断熱性やプライバシー性が低下する可能性もあります。
高性能な窓を採用して断熱性を高めたり、型ガラスにして視線を遮ったりするなどの対策がおすすめです。
②断熱性能を高めて玄関の寒さ対策をする
家全体の断熱性能を高めて玄関の底冷えを軽減させることで快適性が高まります。
窓や玄関ドアの断熱性を高め、断熱材で家全体をすっぽりと覆いましょう。
また窓は開け閉めできないFIX窓は気密性が高まって隙間風が入りにくくなります。
③南面の居住スペースを最大限生かす
北向きの玄関を採用するなら南面の居住スペースを最大限に活かす間取りを考えることがポイントです。
日中過ごすことが多いLDKなどを南面に配置することで明るく居心地の良い空間をつくることができます。
北道路の土地の場合、南面は通行する人や車の目線が気になりにくいため、開放感のあるテラスや庭のある間取りもおすすめです。
④シンプルでスタイリッシュな外観デザインがおすすめ
北面にはリビングなどの居室を配置しないことが多いため、大きな窓は設けにくくなります。
その特徴を活かせるシンプルでスタイリッシュな外観デザインがおすすめです。
窓は小さくして生活感を隠し、外壁の素材感や建物・屋根形状、外構などでオリジナル性をプラスできるようなおしゃれなモダンデザインに仕上げましょう。
▶おすすめコラム:
玄関に窓は必要なのか|メリット・デメリット、窓がある玄関の事例をご紹介
⑤北面に水回りがあるならプライバシー性の配慮を
北側の道路に水回りが面しているなら、プライバシー性への配慮も欠かせません。
- ・高窓にする
- ・型ガラスにする
- ・窓なしにする
高い位置の窓や表面に凹凸がついた型ガラスなら外からの視線を遮りやすくなります。
最近ではトイレや浴室などに窓をつけないケースも増えているため、日当たりや換気なども踏まえて総合的に判断しましょう。
▶︎お電話でのお問い合わせ 0120-35-3436
▶︎ショールームや各種イベントのご予約・お問い合わせはこちら
北向き玄関と「家相・風水」の関係性

家相や風水の観点からみると、北向き玄関は良い点と注意すべき点の両方を併せ持つとされています。
- 【良い点】
- ・協調性が高まってトラブルや争いを避けられる
- ・金運が高まりやすい
北向きの玄関は人間関係や金運に良いとされています。
- 【注意すべき点】
- ・日当たりが悪いため陰のエネルギーが強まりやすい
- ・家全体の運気の流れが悪くなる
暗くて寒い北向きの玄関はマイナスのエネルギーが留まりやすくなるため、ネガティブな感情になったり健康に影響しやすかったりするようです。
明るく快適な玄関にすることで改善されるとも言われていますので気になる方は対策しましょう。
まとめ
北向きの玄関は南面に居室を配置できるため、日当たりの良い開放的な間取りを取り入れやすくなる点が魅力です。
水回りなどが多く配置される北面は窓をシンプルにできるため、モダンやホテルライクな外観にも適しています。
玄関の寒さや暗さなどのデメリットを対策しつつ北向きの玄関のメリットを活かしてくれるような設計力のある住宅会社に相談しましょう。
私たちクレアカーサ(株式会社日立プロパティアンドサービス)は千葉県茂原市にある建築会社です。
平屋建て・2階建てとレパートリー豊富な注文住宅や規格住宅の設計施工実績が豊富で「高断熱+高性能設備+太陽光発電」のZEH(ゼロエネルギー住宅)の普及にも努めております。
補助金を活用したこだわりの住まいもご提案可能ですのでお気軽にお問い合わせください。








