30坪台のビルトインガレージ間取り実例|平屋・2階建ての注意点とガレージ・土地の広さを解説

30坪台の建物でもビルトインガレージがある間取りを採用することは可能です。
そこで今回は延床面積30坪台で建てたガレージハウスの間取りと実例をご紹介します。
平屋と2階建てそれぞれの注意点をお伝えし、必要なガレージと土地の広さを解説しますのでぜひ最後までご覧ください。
コラムのポイント
● 延床面積30坪台の住まいで1台分のビルトインガレージや2台分のオープンガレージを採用した実例をご紹介します。
● ガレージハウスを建てる場合は音や排気ガスへの対策、室内への効率のよい動線の確保、車の買い替えまで想定したプランニングが大切なポイントです。
● ビルトインガレージの使い方に合わせて広さや間取りを提案してくれるガレージハウスの施工実績が豊富な住宅会社への相談をおすすめします。
【延床面積30坪台の家】ビルトインガレージの間取り実例

ビルトインガレージがある延床面積30坪台の家をご紹介します。
【約30坪・平屋】2台分のオープンガレージがある住まい

2台分のオープンガレージがある住まいです。
玄関横にガレージを配置し、室内と行き来しやすい動線を確保しています。

グレーの外壁一色でまとめたシンプルで落ち着きのある平屋の外観です。
広々とした敷地は使い勝手を明確にし、芝庭・アプローチ・駐車スペースの3つに分けてレイアウトしました。

ガレージと玄関ポーチに一体となる屋根をかけたため、車と室内を行き来する際に雨に濡れることがなく快適です。
玄関ポーチは2方向にステップをつけ、ガレージとアプローチのどちらからも使いやすいようにしました。
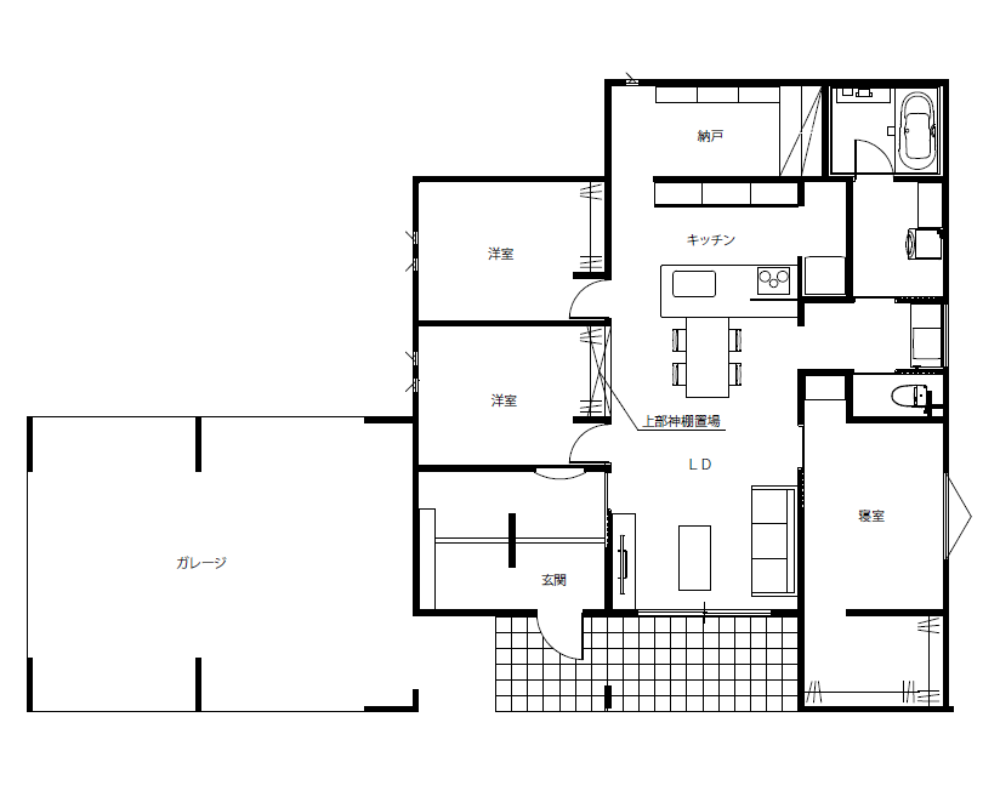
【約33坪・平屋】玄関とつながるビルトインガレージ

ビルトインガレージと玄関が直結する平屋の住まいです。
シャッター付きのガレージのため、雨風や盗難から愛車をしっかり守れます。

黒の外壁とシャッターがかっこいいモダンな外観です。
シャッターの上にはスポットライトを設けることで夜間の駐車がしやすくなるのに加え、外観にさりげない表情をプラスしています。

角地の土地を活かし、玄関はガレージの入り口と異なる面に設けました。
玄関側は極力シンプルな外観デザインに仕上げ、ご夫婦が大好きなサボテンが映えるようにするなど外構と建物の一体感にもこだわっています。
【約34坪・平屋】ビルトインガレージ付きアメリカンハウス

バイクや自転車が停められるコンパクトなビルトインガレージを採用した住まいです。
ガレージには勝手口を設け、シューズクローゼットとつながる動線を確保しました。

真っ白な外壁と大きなカバードポーチが印象的なアメリカンハウスの外観です。
庭のまわりだけ目隠しフェンスを設け、ガレージの使い勝手と敷地のプライバシー性を両立させました。

ガレージの中には高さが自由に変えられる可動棚を採用しました。
自転車やアウトドア用品のメンテナンスもできるゆったりとしたスペースです。
▶施工事例:大好きなインテリアに囲まれた アメリカンスタイルの平屋
【約36坪・2階建て】リビングから愛車が眺められる住まい
1階
大型の車が1台停められるサイズのビルトインガレージがある住まいです。
ガレージにドアを設け、直接リビングにアクセスできる動線をつくっています。

ガレージ上の空間以外に居室を設け、エンジン音などが2階に響きにくいように配慮しました。

白とネイビーのツートンカラーがおしゃれな重厚感のある外観です。
ガレージの内装はグレーの壁と天井でコーディネートし、外観のモダンな雰囲気とつながりを持たせています。

ガレージとつながるリビングにはガラスドアと大きな窓を設けました。
車好きの方にとって理想的な室内から愛車を眺められるガレージハウスです。
▶︎お電話でのお問い合わせ 0120-35-3436
平屋・2階建てのガレージハウスを建てる際の注意点

平屋と2階建てのガレージハウスを建てる際の注意点をそれぞれご紹介します。
【共通】将来を想定してガレージの広さを決める
現在所有している車だけでなく、将来のことを想定してビルトインガレージの広さを決めることが大切です。
台数・車種によって必要な広さは異なるため、増車や大きな車に買い替えることも考慮したうえでゆとりのある広さを確保しましょう。
ただし、ゆとりを持たせすぎると居住スペースを圧迫する可能性もあるため、バランスを考えたプランニングがポイントです。
【共通】室内との効率の良い動線を確保する
ビルトインガレージと室内をつなぐ効率的な動線を採用することで暮らしの利便性が高まります。
具体的には次のような動線がおすすめです。
- ・玄関ポーチの横にガレージを配置する
- ・玄関やシューズクローゼットとガレージを直結させる
玄関とガレージがつながる間取りはスムーズに外出ができ、雨の日でも濡れずに車まで行けるため快適性も高いです。
【共通】音や排気ガスの対策を取り入れる
ビルトインガレージは居住スペースと一体化しているため、エンジン音やシャッターの開閉音、排気ガスの影響を受けやすいです。
音に関しては気密性や防音性の高いドア・断熱材を採用するなどの対策をおすすめします。
またビルトインガレージに個別の換気扇を設けることで排気ガスを効率的に逃がすことが可能です。
【平屋】居住スペースへの日当たりを考える
平屋はすべての空間を1階部分に配置するため、敷地の形状や広さによってはガレージを設けることで日当たりが悪くなる可能性があります。
2階建ての場合は吹き抜けを設けて採光を確保するなどの対策が取れますが、平屋ではそのような手法が使いにくいです。
そのため、建物に凹凸をつけて多方向から光を取り入れたり、中庭を設けたりするなどの工夫を取り入れることをおすすめします。
【平屋】プライベート空間との距離感を考える
平屋は寝室や子ども部屋なども1階に配置するため、ガレージとの距離が近いと音が気になりやすくなります。
ご家族の就寝と帰宅の時間がバラバラの場合、エンジン音やシャッターの開閉音で目が覚めてしまう可能性があるため、プライベート空間の配置には注意が必要です。
ビルトインガレージとプライベート空間を離して配置し、静音のシャッターを採用するなど快適に過ごせるような工夫を取り入れましょう。
【2階建て】耐震性を考慮して間取りを検討する
ビルトインガレージは柱や壁の少ない大空間になるため、その上に居室を配置すると耐震性を確保しにくくなる点に注意が必要です。
上を屋根やバルコニーとすることでガレージへの荷重を抑えやすくなり、耐震性を確保しやすくなります。
ガレージの上に居室を設けたい場合は柱・耐力壁の配置や金物で補強するなどの対策が必要になる可能性があるため、住宅会社に相談して最適な方法を取り入れましょう。
【2階建て】ガレージ上の部屋への音・断熱性などの影響を考える
ガレージの真上の部屋は音が響きやすく、冬場は床からの冷えを感じやすい点がデメリットです。
ガレージと2階の部屋の間には断熱性・気密性の高い断熱材を採用することで音や冷気が伝わりにくくなります。
また使用頻度の低い書斎や収納スペースにガレージ上に配置し、寝室や子ども部屋など静かさや快適性が求められる部屋の配置は避けるのも有効な対策です。
【2階建て】2階リビングの場合は階段の位置にこだわる
1階がビルトインガレージ、2階にLDKを配置する間取りの場合、より動線にこだわったプランニングが重要です。
玄関と階段の位置を近づけ、最短距離で2階へ行けるようにすると暮らしの効率が高まります。
また1・2階どちらかの階段付近に洗面台を配置することで帰宅直後に手洗い・うがいがしやすくなり、生活動線のストレス軽減や衛生面の向上につながります。
▶おすすめコラム
・ガレージ付き一軒家を建てたい!間取り計画のポイント6つと施工事例を紹介
・【事例紹介】ガレージ付き平屋建て住宅のメリット・デメリットと間取り・デザインのポイント
私たちクレアカーサ(株式会社日立プロパティアンドサービス)は千葉県茂原市にて、お客様の個性やライフスタイルに合わせて一邸一邸大切につくる家づくりをしております。
お客様の暮らしをしっかりとお伺いしたうえで建物に合うガレージハウスの広さや間取りをご提案いたします。

▶︎お電話でのお問い合わせ 0120-35-3436
▶︎ショールームや各種イベントのご予約・お問い合わせはこちら
1台分・2台分のビルトインガレージに必要な広さ

ビルトインガレージに必要な広さを解説します。
国土交通省の「駐車場設計・施工指針」によると、駐車場の広さは最低でも下記のサイズ以上に設計することと示されています。
| 設計対象車両 | 長さ | 幅員 |
|---|---|---|
| 軽自動車 | 3.6m | 2.0m |
| 小型乗用車 | 5.0m | 2.3m |
| 普通乗用車 | 6.0m | 2.5m |
ちなみに自動車のサイズに関しては次のような決まりがあります。
- ・軽自動車:全長3.4m以下、全幅1.48m以下、全高2.0m以下
- ・小型乗用車:全長4.7m以下、全幅1.7m以下、全高2.0m以下
- ・普通乗用車:小型自動車の規格より大きいもの
これらの基準と実際の車の大きさを踏まえつつ、建物とぶつからないドアの開閉スペースや通路幅を確保することがポイントです。
1台分のビルトインガレージ
1台の車を停められるビルトインガレージの広さを考えていきましょう。
今回は一般的なミニバンを駐車すると想定します。
- ・一般的なミニバンのサイズ:全長が5.0m弱・全幅が1.7~1.9m程度
- ・普通乗用車の最低限の駐車場:長さ6.0m・幅員2.5m
長さ6mのビルトインガレージの場合、前寄りに駐車すればトランクを開け閉めすることが可能ですが、ゆとりを持たせたい場合は+0.3~0.5m程度の長さを確保すると安心です。
また車の乗り降りや通路幅は60cm程度あれば問題なく、90cm程度あるとゆとりが生まれます。
これらを踏まえると1台分のビルトインガレージに必要な広さの目安は次の通りです。
| 長さ | 幅員 | |
|---|---|---|
| 最低限の駐車場の広さ | 6.0m | 2.5m |
| 一般的なビルトイン ガレージの広さ |
6.0~6.3m | 2.9~3.1m (両側60cmのスペース) |
| ゆとりのあるビルトイン ガレージの広さ |
6.3~6.5m | 3.2~3.7m (60cm+90cmまたは 両側90cmのスペース) |
具体的な車種によって必要なサイズは変わるため、買い替えも想定したうえで広さを検討しましょう。
2台分のビルトインガレージ
先ほどと同様にミニバンを駐車すると想定し、2台分のビルトインガレージのサイズも考えてみましょう。
基本的には「2台目の車幅1.7~1.9m+車間のスペース」を1台分の駐車スペースにプラスして考えます。
| 長さ | 幅員 | |
|---|---|---|
| 最低限の駐車場の広さ | 6.0m | 2.5m |
| 一般的なビルトイン ガレージの広さ |
6.0~6.3m | 5.2~5.4m (両側・車間に60cmのスペース) |
| ゆとりのあるビルトイン ガレージの広さ |
6.3~6.5m | 5.5~6.5m (両脇60~90cm、 車間60~90cmのスペース) |
ビルトインガレージ内でメンテナンスをしたい、収納を設けたいなどのご要望がある場合は必要な広さが異なるため、事前に住宅会社に伝えたうえで適切なスペースを提案してもらいましょう。
▶︎お電話でのお問い合わせ 0120-35-3436
▶︎ショールームや各種イベントのご予約・お問い合わせはこちら
30坪台のガレージハウスに必要な土地の広さ

35坪程度の総2階建てのガレージハウスの場合、1階の面積は20坪弱に抑えられるため、30坪台の土地でも建築が可能です。
ただし、庭や予備の駐車スペースをつくる場合は最低でも50~60坪台の土地を採用する必要があります。
今回ご紹介した実例の延床・敷地面積をご紹介しますので土地の広さを参考になさってください。
| 実例 | 延床面積 | 敷地面積 |
|---|---|---|
| ①2台分のオープンガレージ | 98.54㎡ (29.80坪) |
471.35㎡ (142.58坪) |
| ②1台分のシャッター付きガレージ | 109.86㎡ (33.23坪) |
230.42㎡ (69.70坪) |
| ③バイク・自転車用ガレージ | 110.96㎡ (33.56坪) |
267.36㎡ (80.87坪) |
| ④1台分のシャッター付きガレージ | 119.84㎡ (36.25坪) |
317.99㎡ (96.19坪) |
ちなみに下の実例は延床面積が約41坪のガレージハウスですが、50坪台の敷地で玄関まわりの外構と南面の庭、2台分のオープンガレージを実現しています。

▶施工事例:ダウンリビングを愉しむ 白い塗り壁のガレージハウス
敷地の形状によっても確保できる駐車台数や庭の広さは異なるため、住宅会社と一緒に土地探しを行い、配置計画も踏まえて選ぶことがポイントです。
▶おすすめコラム
・土地なしで注文住宅を建てる流れとは? 手順と注意点を解説
まとめ
30坪台のガレージハウスを採用する場合は居住スペースとのバランスを考慮しつつ、使い勝手のいい広さを確保することが大切です。
現在所有している車だけではなく、買い替えや増車も考慮してビルトインガレージのサイズや予備の駐車スペースの有無などを考えましょう。
お客様のライフスタイルをしっかりと把握し、敷地を最大限に活かしたガレージハウスを建ててくれる実績豊富な住宅会社への相談をおすすめします。
私たちクレアカーサ(株式会社日立プロパティアンドサービス)は千葉県茂原市にある建築会社です。
平屋建て・2階建てとレパートリー豊富な注文住宅や規格住宅の設計施工実績が豊富で「高断熱+高性能設備+太陽光発電」のZEH(ゼロエネルギー住宅)の普及にも努めております。
お気軽にお問い合わせください。








